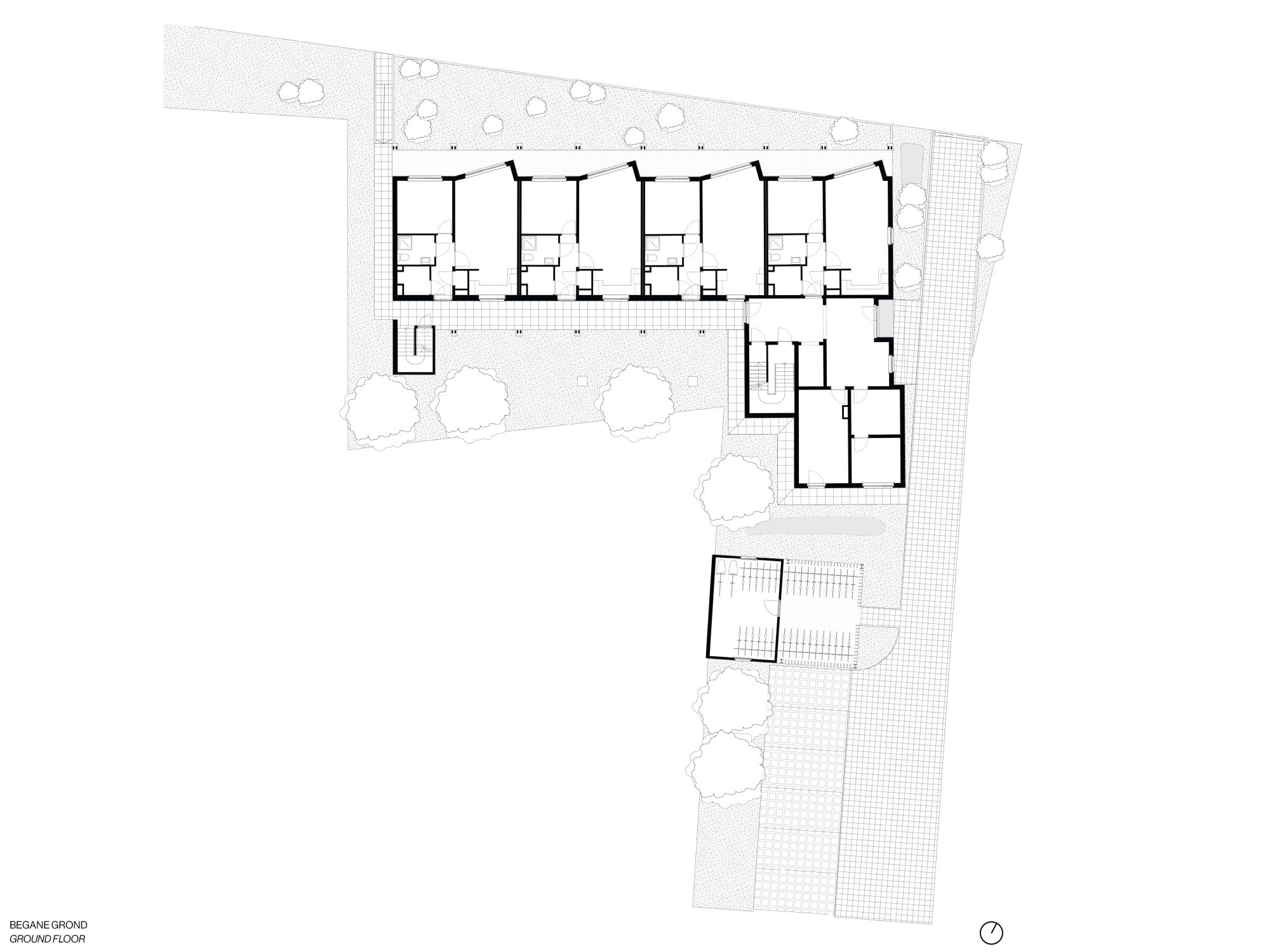
De Voorkempen intends to renovate a building with 17 apartments and develop a contemporary living environment that embodies the distinctive building’s street facade, while respecting the existing structure. Located between Antwerp and Schoten, the site includes a parking area behind the building, green spaces, and a pedestrian and bicycle path at the front.
The project emphasizes contemporary identity, well-being, and sustainability, with a focus on high-quality living spaces and thoughtful integration into the local context. The aim is to respond to individual housing needs while simultaneously supporting broader societal goals, thereby strengthening both the urban environment and sense of community.
Our strategy is to redefine the connection between indoor and outdoor spaces, ensuring that each dwelling has access to outdoor areas (both private and collective). The neglected open space at the rear of the building will be upgraded, bringing more light and improved ventilation into the apartments. This improved garden will also be used to enhance collectivity within the building and foster a stronger living community.
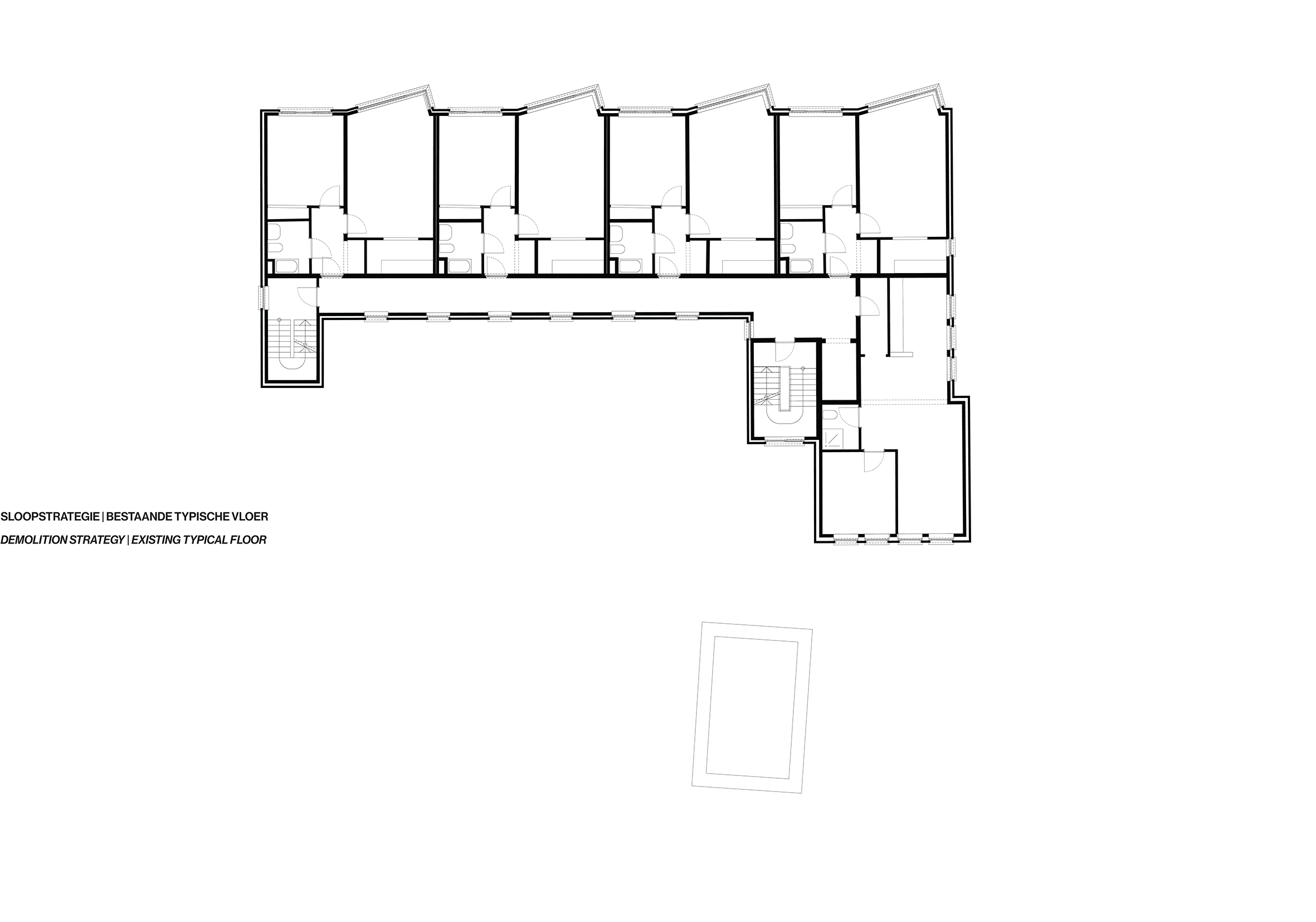
The demolition process was highly selective, preserving as much as possible from the existing structure and enhancing existing special features, such as the unique front façade and roof edge and the articulated entrance volume.
The new gallery structures added to the front and rear building edges allows for sunlight and ventilation, while the existing trees and vegetation on site provide sufficient screening and privacy for the residents. The shared rear garden on the ground floor will become more accessible, enhancing daily life and interaction among residents.
















