Westerkade Housing

Scroll voor meer info

Scroll for more info

Restoration and renovation of a monument into apartments

Informatie

Information

Status: Realised 2000
Team: Evelien van Veen, Onno Groen
Client: Stedelijk Wonen Rotterdam NV
Location: Rotterdam
Program: 3 apartments in a national monument
Copyright: Drost + van Veen Architecten

Westerkade Housing

The National Monument Westerkade 19 in Rotterdam dates from the nineteenth century and is located in the historic Scheepvaartkwartier in Rotterdam. The luxurious appearance of the monument stems from a remarkable mixture of styles, from Italian motifs from the eleventh and fifteenth centuries to a nineteenth century German interpretation. The facade is characterized by a detailing with cast iron columns and a heavy cornice.

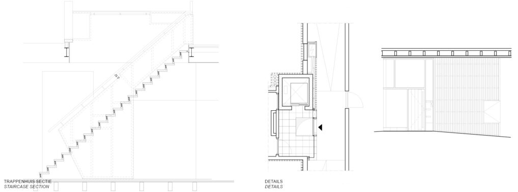
Commissioned by Stedelijk Wonen Rotterdam, Drost + van Veen Architecten made a design for the restoration and renovation of the building into three modern luxury apartments. Parts of the original interior had disappeared due to a series of earlier renovations. However, the monumental stairwell with its fireplace, the stained glass skylight and the teak doors were still in original condition. In the design an apartment is situated on the ground floor and on the first floor. The third apartment is located on the second and third floor and has a roof terrace. A major procedure is the key lift that comes out directly in any living space.

The floor plans have a U-shape that folds around the existing stairwell. The large open spaces can be used for various living and / or work forms. Functional spaces such as lift, wardrobe, kitchen, storage room, toilet and shower are included in a compact, plasticly designed central core. This retains the character of the existing monumental space.

For more information about Westerkade Housing, please contact:

Evelien van Veen

Evelien van Veen is a partner at Woonwerk Architecten. She was previously the owner and director of van Veen Architecten bv. (9 years) and Drost + van Veen Architecten bv. (25 years). Her main focus is residential construction, particularly for the elderly target group, ranging from vital city seniors with customized care needs and the heavy target group with a need for 24-hour care (including somatics and dementia). To this end, Evelien has broad experience in healthcare and works closely together in a permanent network of partners, particularly in the Netherlands, but also in China, England and Belgium. After more than 30 years of experience, she has received many publications for the design of the Library Den Helder, realized in collaboration with Mars interior Architects and won the prize for the best library in the world. In addition to the design activities, Evelien is a chairperson of spatial quality committees, a jury member of competitions and selections, she gives lectures and is a recent board member of the Bureau Architects Register. Evelien van Veen designs buildings with a strong identity. Buildings that surprise and intrigue through a layered meaning and that communicate with the environment and users on more than one level. The architecture tells a clear story, in conjunction with the urban context and the DNA of the location as a starting point and source of inspiration.
More about Evelien
This site is registered on wpml.org as a development site. Switch to a production site key to remove this banner.