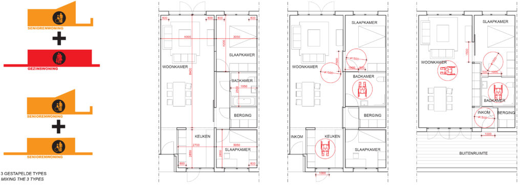
The Beukenlaan is positioned in the center of a quiet neighborhood. A green playground and a soccer field lie in the center of this area. Kids come here to play and the inhabitants come here to relax. The development of the site at the Beukenlaan provides an excellent opportunity to meet the potential of the area as the meeting point of the neighborhood. By turning the new housing and addressing the playground, the relation of this place with its surroundings remains optimal. The proposed new housing is for families and seniors.
Living and playing at the park

Informatie
Information
Status: Start construction 2015, 1st place competition 2009
Team: Johan De Wachter, Patricia Mata, Marieke van Hensbergen, Rutger Boydens, Maria Cànoves, Rik de Vooght
Client: SHM De Ideale Woning
Location: Wommelgem, BE
Team: Johan De Wachter, Patricia Mata, Marieke van Hensbergen, Rutger Boydens, Maria Cànoves, Rik de Vooght
Client: SHM De Ideale Woning
Location: Wommelgem, BE
Living at the park
















For more information about Living at the park, please contact:
Maria Cànoves i Garcia
Maria always liked arts and crafts but was also interested in the physical aspect of things. Therefore, she decided to study architecture, which was a good combination of both her interests. Although she studied in Valencia, her professional experience was mainly in Belgium. In 2010 she started working in Antwerp as an intern for Open Architecten through the Leonardo Da Vinci European program. There she met Rik De Vooght and together they started Rik De Vooght Architecten. Maria has not only been an architect for RDVA but also an office manager, making what the office of Antwerp is nowadays. In her free time she is busy with her son, with ceramics and with plants.
More about Maria









