Westerkade Woningen

Scroll voor meer info

Scroll for more info

Restauratie en verbouwing van een monument tot appartementen

Informatie

Information

Status: Realisatie 2000
Team: Evelien van Veen, Onno Groen
Opdrachtgever: Stedelijk Wonen Rotterdam NV
Locatie: Rotterdam
Programma: 3 appartementen in een Rijksmonument
Copyright: Drost + van Veen Architecten

Westerkade Woningen

Het Rijksmonument Westerkade 19 te Rotterdam dateert uit de negentiende eeuw en ligt in het historische Rotterdamse Scheepvaartkwartier. De luxe uitstraling van het monument komt voort uit een merkwaardig mengsel van stijlen, van Italiaanse motieven uit de elfde en vijftiende eeuw tot een negentiende eeuwse Duitse interpretatie. De gevel wordt gekarakteriseerd door een detaillering met gietijzeren kolommen en een zware kroonlijst.

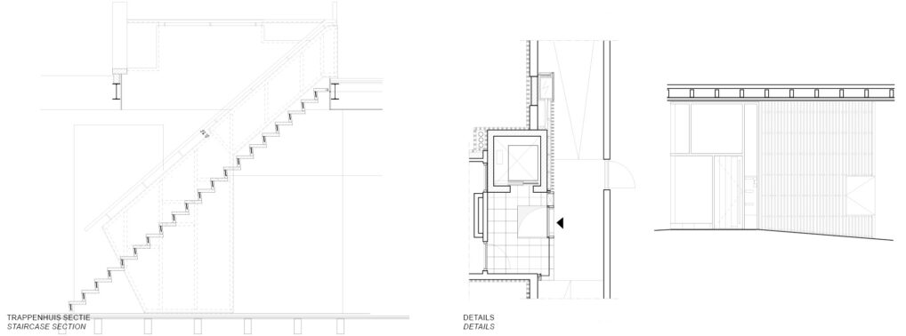
In opdracht van Stedelijk Wonen Rotterdam heeft Drost + van Veen architecten een ontwerp gemaakt voor de restauratie en verbouwing van het pand tot drie moderne luxe appartementen. Door een reeks eerdere verbouwingen waren delen van het oorspronkelijke interieur verdwenen. Het monumentale trappenhuis met zijn open haard, het glas-in-lood daklicht en de teakhouten deuren waren echter nog in originele staat. In het ontwerp is op de begane grond en op de eerste verdieping een appartement gesitueerd. Het derde appartement is gelegen op de tweede en derde verdieping en heeft een dakterras. Een grote ingreep is de sleutellift die direct in elke woonruimte uitkomt.

De plattegronden hebben een U-vorm die zich om het bestaande trappenhuis vouwt. De grote open ruimten zijn bruikbaar voor diverse woon- en of werkvormen. Functionele ruimten zoals lift, garderobe, keuken, berging, toilet en douche zijn opgenomen in een compacte, plastisch vormgegeven centrale kern. Hierdoor blijft het karakter van de bestaande monumentale ruimte behouden.

Neem voor meer informatie over Westerkade Woningen contact op met:

Evelien van Veen

Evelien van Veen is partner bij Woonwerk Architecten. Voorheen eigenaar en directeur van Veen Architecten bv (9 jaar) en Drost + van Veen Architecten bv (25 jaar). Haar focus ligt op woningbouw, met name voor de doelgroep ouderen, variërend van vitale stadssenioren met zorg op maat tot de zware doelgroep met een behoefte aan 24-uurs zorg (o.a. somatiek en dementie). Met dit in achtneming heeft Evelien brede ervaring in de zorg en werkt ze nauw samen in een vast netwerk van partners, met name in Nederland, maar ook in China , Engeland en België. Inmiddels heeft zij, na ruim 34 jaar ervaring, vele publicaties mogen ontvangen voor het ontwerp van de Bibliotheek Den Helder, gerealiseerd in samenwerking met Mars interieurarchitecten, waarvoor ze de prijs voor de beste bibliotheek ter wereld won. Naast de ontwerpactiviteiten is Evelien voorzitter van commissies Welstand, jurylid van prijsvragen en selecties, geeft ze lezingen en is bestuurslid van Bureau Architectenregister. Evelien Van Veen ontwerpt gebouwen met een sterke identiteit. Gebouwen die vanwege een gelaagde betekenis verrassen en fascineren en die op meer dan één niveau communiceren met de omgeving en zijn gebruikers. De architectuur vertelt een duidelijk verhaal in samenhang met de stedelijke context en het DNA van de locatie en gebruikt dit als uitgangspunt en inspiratiebron.
More about Evelien
This site is registered on wpml.org as a development site. Switch to a production site key to remove this banner.