Scroll voor meer info

Scroll for more info

Uitbreiding voor multifunctioneel gebruik

Informatie

Information

Status: Opgeleverd 2023
Team: Johan de Wachter, Marieke van Hensbergen, Katarína Karásková
Opdrachtgever: Theaterschip
Locatie: Havenkwartier, Deventer, NL
Programma: Theaterfoyer

Fotograaf: Aiste Rakauskaite

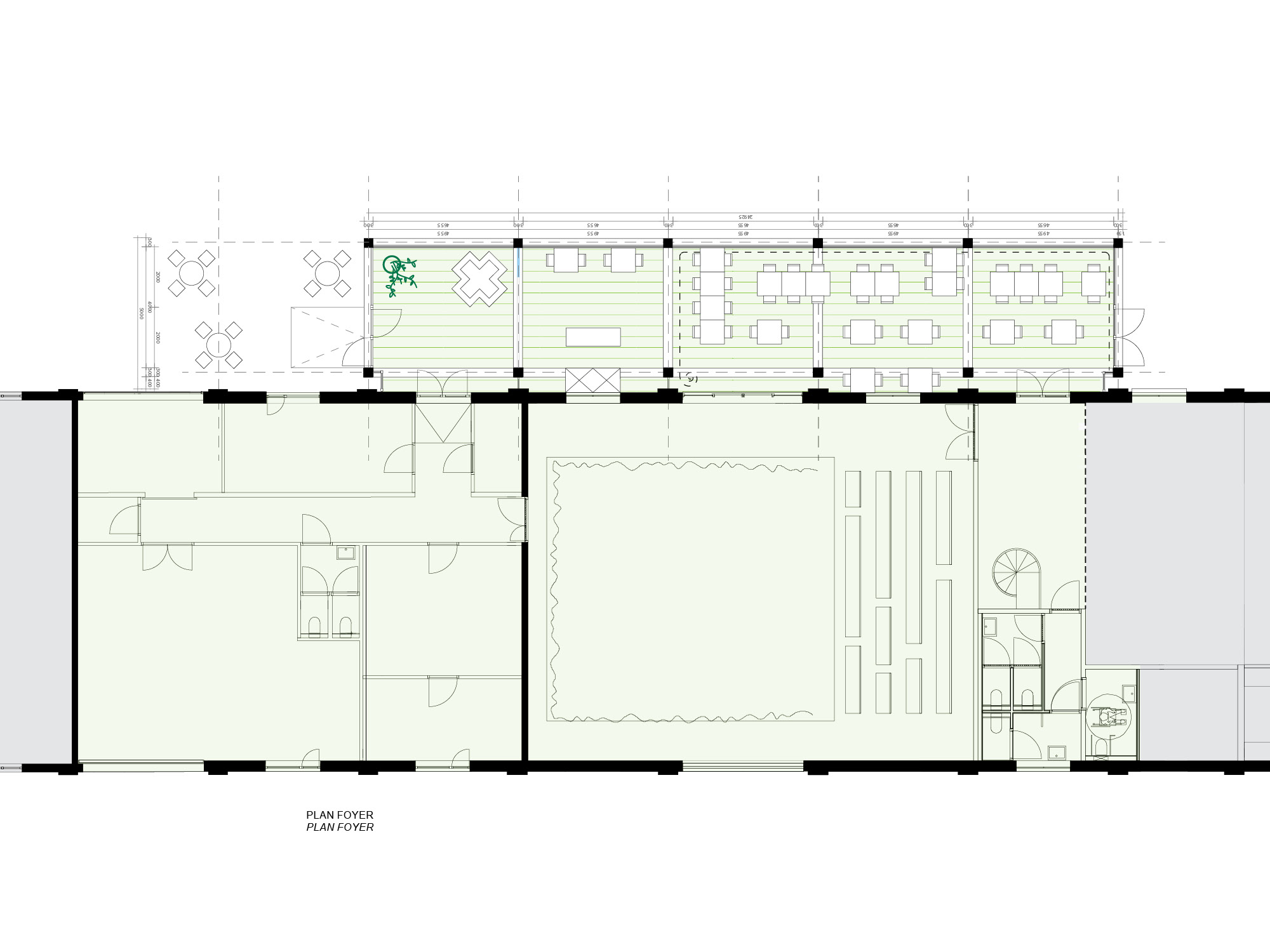
Bodenloods foyer

De Bodenloods was een van de eerste gebouwen in Deventers Havenkwartier die door Woonwerk werd getransformeerd voor langdurig nieuw gebruik. Inmiddels hebben er zich verschillende bedrijven gevestigd zoals een fotostudio, twee cafés op de koppen en in het hart het Theaterschip. Momenteel delen het café aan de zuidkant en het theater samen een foyer, maar dat gaat veranderen. Doordat het café uitbreid in de huidige foyer, is het Theaterschip toe aan een eigen nieuwe foyer.

Het voorgestelde volume wordt tegen de bestaande loods aan gepositioneerd ‘alsof er een vierendeelligger op de kade is gesmeten’. De eenvoudige aanbouw is transparant waardoor de achterliggende gevel zichtbaar zal blijven. De uitstekende module aan de noordkant zal in de toekomst met een kunstwerk ingevuld worden hetgeen de entree communiceert richting de omgeving.

De langwerpige foyer verbindt drie huidige entreedeuren van het gebouw. Dit zorgt ervoor dat de ruimten van het theater afzonderlijk van elkaar kunnen functioneren wat de programmatorische mogelijkheden sterk vergroot.

Als een Zwitsers zakmes vervult de foyer zo allerhande functies en verzekert een nog langere adem voor deze eens eenvoudige havenloods.

Neem voor meer informatie over Bodenloods foyer contact op met:

Johan De Wachter

Johan de Wachter is architect en oprichtend partner bij Woonwerk Architecten. Hij kwam na zijn studie aan de Katholieke Universiteit Leuven naar Rotterdam en werkte van 2000 tot 2004 bij het Office for Metropolitan Architecture (OMA/Rem Koolhaas) aan verschillende stedenbouwkundige en architectuur projecten en prijsvragen. In 2003 richtte hij Fün Design Consultancy op en was er partner tot 2005. In 2005 richtte hij Johan De Wachter Architecten op en in 2011 startte hij samen met Rik De Vooght 2DVW Architecten in Antwerpen. In 2023 krijgen de bureaus een nieuwe naam. Met de oprichting van Woonwerk Architecten wordt deze samenwerking verder vormgegeven. Met Woonwerk werkt Johan aan projecten in binnen- en buitenland. Johan geeft regelmatig les en was onder andere gastdocent aan de Technische Universiteit van Delft, de Academie voor Bouwkunst in Rotterdam en de Fontys Hogeschool voor Architectuur & Stedenbouw in Tilburg. Hij werd in 2015 benoemd tot associate professor stedenbouwkundig ontwerp aan de Kaunas University of Technology. Hier geeft hij leiding aan de ontwerpstudio’s met een specifieke focus op de integrale transformatie van voormalige soviet woonwijken (microrayons). Johan De Wachter werd in 2014 geselecteerd voor de “Europe 40 Under 40 Award”. Deze award erkende Johan als een van de 40 toonaangevende jonge ontwerptalenten uit Europa. Naast zijn werk als architect en docent zetelt Johan regelmatig in verschillende commissie en jury’s in binnen- en buitenland. Momenteel is hij lid van de commissie ruimtelijke kwaliteit in Breda (NL) en van de omgevingscommissie in Tilburg (NL).
More about Johan
This site is registered on wpml.org as a development site. Switch to a production site key to remove this banner.