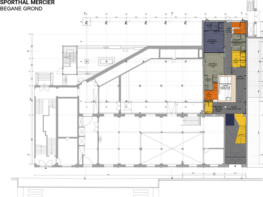
The Schaarbeek Municipality wants to integrate a new sports hall in the existing school (Technical Institute Cardinal Mercier). During the day, the facility will be used by the school, in the evenings, weekends and holidays, the neighborhood will be using the new hall. The existing buildings of the school date back to the beginning of the 20th century and are organized around 2 courtyards. To make room for the new sports hall, some parts of existing buildings have to be demolished. The new hall will partly hoover over the courtyard creating a covered playground for the students. An abstract volume is integrated within the ensemble of the existing school.
Sports Hall Mercier
Scroll voor meer info
Scroll for more info
For school and neighborhood

Informatie
Information
Status: 1st prize competition 2012, building application 2016
Team: Johan De Wachter, Marieke van Hensbergen, Andrius Kalinauskas
Client: Sustainable neighborhood contract and Beliris
Location: Schaarbeek, BE
Team: Johan De Wachter, Marieke van Hensbergen, Andrius Kalinauskas
Client: Sustainable neighborhood contract and Beliris
Location: Schaarbeek, BE
Sports Hall Mercier







For more information about Sports Hall Mercier, please contact:
Johan De Wachter
Johan de Wachter is an architect and founding partner at Woonwerk Architecten. He came to Rotterdam after his studies at the Catholic University of Louvain (KUL) and worked from 2000 to 2004 at the Office for Metropolitan Architecture (OMA/Rem Koolhaas) on various urban planning and architecture projects and competitions. In 2003 he founded Fün Design Consultancy and was a partner until 2005. In 2005 he founded Johan De Wachter Architecten and in 2011 he started 2DVW Architecten in Antwerp together with Rik De Vooght. In 2023, the agencies are given a new name. With the establishment of Woonwerk Architecten, the collaboration is given further shape. With Woonwerk, Johan works on projects at home and abroad.
Johan regularly teaches and has been, among others, a guest lecturer at Delft University of Technology, the Academy of Architecture in Rotterdam and the Fontys University of Applied Sciences in Tilburg. He was appointed associate professor of urban design at Kaunas University of Technology in 2015. Here he leads the design studios with a specific focus on the integral transformation of former soviet residential areas (microrayons). Johan De Wachter was selected in 2014 for the “Europe 40 Under 40 Award”. This award recognized Johan as one of the 40 leading young design talents from Europe.
In addition to his work as an architect and teacher, Johan regularly sits on various committees and juries in the Netherlands and abroad. He is currently a member of the spatial quality committee in Breda (NL) and of the environmental committee in Tilburg (NL).
More about Johan





