Roodhuisberg

Scroll voor meer info

Scroll for more info

Special living in a standard neighborhood

Informatie

Information

Status: Completed 2023, 1st place competition 2017
Team: Johan de Wachter, Rik de Vooght, Nicolette Marzovilla, Rutger Boydens
Collaboration: Studie 10
Client: SHM Sociaal Wonen arro Leuven
Location: Roodhuisberg, Aarschot, Belgium
Program: 12 houses

Roodhuisberg

Social housing corporation SHM Sociaal Wonen arro Leuven wanted to realize 12 houses on plots for which the masterplan had been pre defined. The plan consists of traditional housing with front and back gardens.
The zones for social housing are slightly different. The first zone or S1 is designed as an alley: five houses around a compact public space. The houses are very undeep and wide and their fronts are oriented at the alley instead of the Herseltsesteenweg behind.

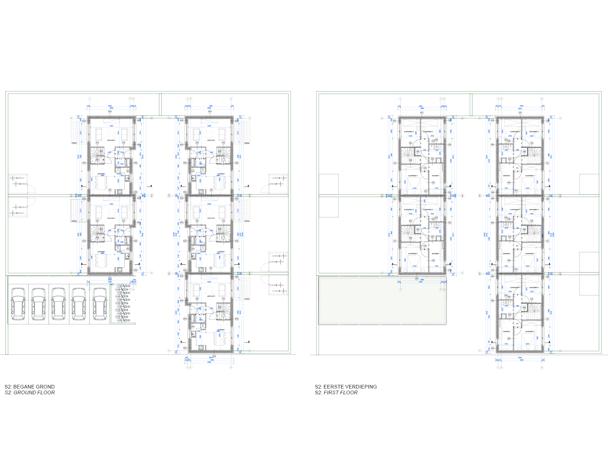
The second zone or S2 is a zone for a compact apartment building. Here 7 apartments are realized. Parking for cars and bikes is solved collectively on the plot. The plot borders mostly side and back facades of new houses and on the west side a school. The context asks for a creative building in order to develop with the necessary respect for the neighbors.

For more information about Roodhuisberg, please contact:

Johan De Wachter

Johan de Wachter is an architect and founding partner at Woonwerk Architecten. He came to Rotterdam after his studies at the Catholic University of Louvain (KUL) and worked from 2000 to 2004 at the Office for Metropolitan Architecture (OMA/Rem Koolhaas) on various urban planning and architecture projects and competitions. In 2003 he founded Fün Design Consultancy and was a partner until 2005. In 2005 he founded Johan De Wachter Architecten and in 2011 he started 2DVW Architecten in Antwerp together with Rik De Vooght. In 2023, the agencies are given a new name. With the establishment of Woonwerk Architecten, the collaboration is given further shape. With Woonwerk, Johan works on projects at home and abroad. Johan regularly teaches and has been, among others, a guest lecturer at Delft University of Technology, the Academy of Architecture in Rotterdam and the Fontys University of Applied Sciences in Tilburg. He was appointed associate professor of urban design at Kaunas University of Technology in 2015. Here he leads the design studios with a specific focus on the integral transformation of former soviet residential areas (microrayons). Johan De Wachter was selected in 2014 for the “Europe 40 Under 40 Award”. This award recognized Johan as one of the 40 leading young design talents from Europe. In addition to his work as an architect and teacher, Johan regularly sits on various committees and juries in the Netherlands and abroad. He is currently a member of the spatial quality committee in Breda (NL) and of the environmental committee in Tilburg (NL).
More about Johan
This site is registered on wpml.org as a development site. Switch to a production site key to remove this banner.