Dit project betreft 40 nieuwe sociale woningen die deel uitmaken van een grotere ontwikkeling van een binnengebied in Zele. Het voorstel bouwt voort op een stedenbouwkundige studie waarin de footprints van gebouwen, woningaantallen en -typologieën duidelijk zijn omschreven. Een belangrijk streven in het masterplan is het behoud van het groene karakter en de informele sfeer. Dit wordt bereikt door het beperken van de footprints voor gebouwen, het behouden van volkstuintjes, de ezel weide en het creëren van ruimte voor water. Gebouwen staan ontspannen in het groen, soms vrij, soms mooi om een rand af te maken.
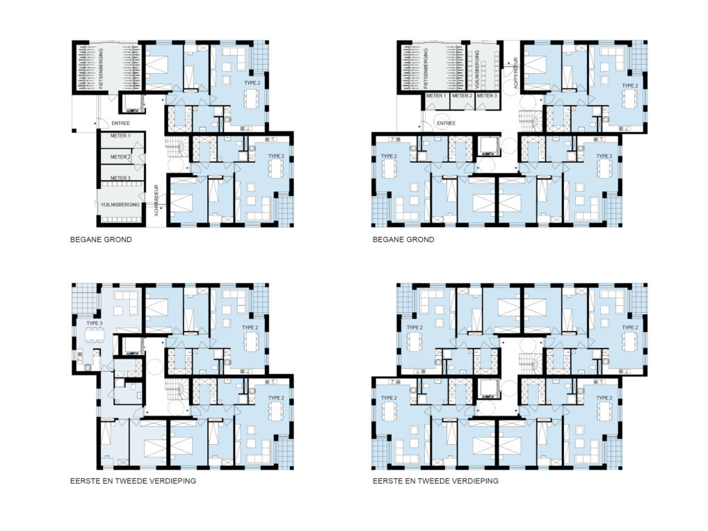
Het beeld van het gebouw is zorgvuldig opgebouwd. Op de begane grond zijn de entrees van de individuele woningen mooi vormgegeven. Door variatie in de vormgeving van de bakstenen gevel ontstaat een gedetailleerd beeld dat zorgt voor eenheid en verbijzondering. Zo ontstaat een verwantschap tussen de gebouwen terwijl ze door de subtiele variatie toch een eigen identiteit krijgen.
Het tuinpaviljoen doet dienst als de ontmoetingsruimte voor de buurt. Hier is ruimte voor verenigingen en voor bewoners die bijvoorbeeld een verjaardagsfeestje willen organiseren. Het paviljoen is geïnspireerd op het dak van de appartementen en de woningen.








