Voor een ingesloten woonuitbreidingsgebied in Beveren werd een masterplan opgemaakt voor de ontwikkeling van 278 woningen. Het doel was om 50% van het plot in te vullen als kwalitatief wijkgroen en met een fijnmazig traag netwerk aan te sluiten op de bestaande structuur van het dorp.
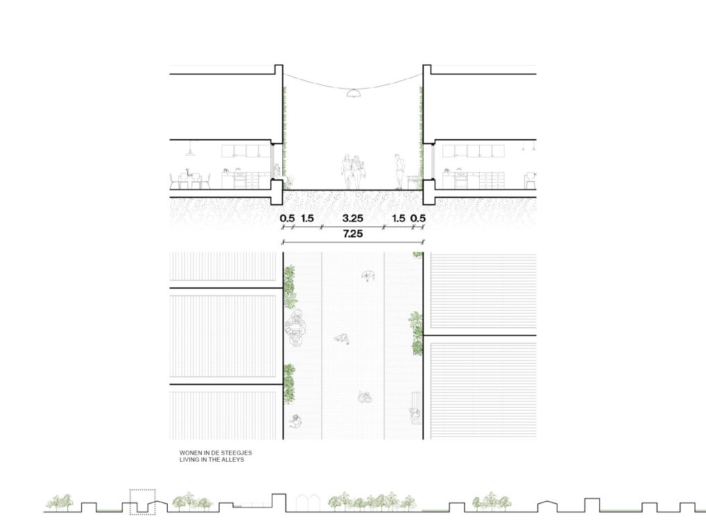
Voor de groenstructuur werd vertrokken vanuit de historische polderstructuur van langgerekte percelen, in het plan krijgt iedere strook een eigen karakter. De open groene stroken worden afgewisseld met stoken bebouwing en onderling verbonden met een route. Waar deze route de bebouwde stroken kruist ontstaan pleintjes met elk een eigen invulling waardoor er overal in de buurt iets te beleven valt!
Iedere nieuwe woning in het masterplan grenst aan het groen en ook het open zicht van de buren wordt behouden. Het plan wordt omzoomd door een groene rand met een bospad dat de buurt op een informele manier ontsluit.
In het resulterende masterplan ontstaan vier verschillende woonsferen waarvoor passende woontypologieën en straatprofielen werden ontworpen. Zo ontstaat een diverse groene woonwijk met een grote meerwaarde voor het dorp en lokale biodiversiteit.
























