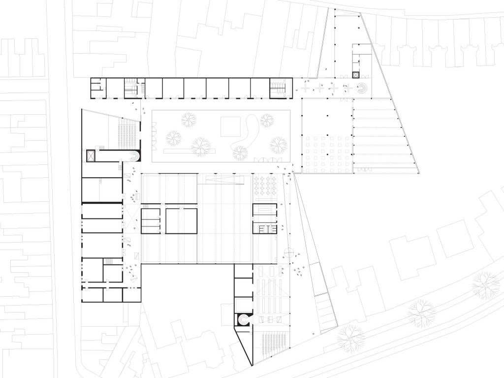
Het hart van de locatie voor de Stedelijke Academies Deinze maken we vrij om zo een ‘leegte’ aan het stedelijk weefsel toe te voegen. Een één-laagse galerij vormt het ‘frame’ rond deze binnentuin en verbindt tegelijkertijd alle bestaande gebouwen. De nieuw gedefinieerde ruimte is de plek bij uitstek die representatief kan zijn voor de Academies en hun activiteiten en brengt tegelijkertijd overzicht en rust middenin het bouwblok.
Stedelijke Academies Deinze
Scroll voor meer info
Scroll for more info
Transformatie door nieuwe organisatie

Informatie
Information
Status: Open Oproep Vlaams Bouwmeester 2010
Team: Johan De Wachter, Kim van den Hoven, Marieke van Hensbergen
Samenwerking: Michael Smith
Opdrachtgever: gemeente Deinze, Vlaams Bouwmeester
Locatie: Deinze, BE
Stedelijke Academies Deinze














Neem voor meer informatie over Stedelijke Academies Deinze contact op met:
Johan De Wachter
Johan de Wachter is architect en oprichtend partner bij Woonwerk Architecten. Hij kwam na zijn studie aan de Katholieke Universiteit Leuven naar Rotterdam en werkte van 2000 tot 2004 bij het Office for Metropolitan Architecture (OMA/Rem Koolhaas) aan verschillende stedenbouwkundige en architectuur projecten en prijsvragen. In 2003 richtte hij Fün Design Consultancy op en was er partner tot 2005. In 2005 richtte hij Johan De Wachter Architecten op en in 2011 startte hij samen met Rik De Vooght 2DVW Architecten in Antwerpen. In 2023 krijgen de bureaus een nieuwe naam. Met de oprichting van Woonwerk Architecten wordt deze samenwerking verder vormgegeven. Met Woonwerk werkt Johan aan projecten in binnen- en buitenland.
Johan geeft regelmatig les en was onder andere gastdocent aan de Technische Universiteit van Delft, de Academie voor Bouwkunst in Rotterdam en de Fontys Hogeschool voor Architectuur & Stedenbouw in Tilburg. Hij werd in 2015 benoemd tot associate professor stedenbouwkundig ontwerp aan de Kaunas University of Technology. Hier geeft hij leiding aan de ontwerpstudio’s met een specifieke focus op de integrale transformatie van voormalige soviet woonwijken (microrayons). Johan De Wachter werd in 2014 geselecteerd voor de “Europe 40 Under 40 Award”. Deze award erkende Johan als een van de 40 toonaangevende jonge ontwerptalenten uit Europa.
Naast zijn werk als architect en docent zetelt Johan regelmatig in verschillende commissie en jury’s in binnen- en buitenland. Momenteel is hij lid van de commissie ruimtelijke kwaliteit in Breda (NL) en van de omgevingscommissie in Tilburg (NL).
More about Johan









