Park the ‘Hoge Rielen’ is a nature recreation domain with various pavilions to accommodate organised youth groups. In 2007 the Helix pavilion by Hans Barbier needed an update of it’s sanitary facilities.
Late 2007 Open Architects & JDWA won this competition. Early 2011 the pavilion was delivered. We’re only waiting now for the ‘GreenGrid’ facade to be overgrown so the pavilion becomes one with nature.
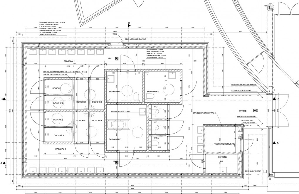
Sanitary pavilion in park the 'Hoge Rielen', Belgium

Informatie
Information
Status: 1st prize competition 2007, completed 2011
Team: Tuuli Köller, Johan De Wachter, Rik de Vooght
Client: Flemmish Government, Hoge Rielen Park
Location: Kasterlee, BE
Team: Tuuli Köller, Johan De Wachter, Rik de Vooght
Client: Flemmish Government, Hoge Rielen Park
Location: Kasterlee, BE
Hoge Rielen



For more information about Hoge Rielen, please contact:
Rik De Vooght
Rik studied at the Caholic University of Leuven from where he graduated as an engineering architect. He starts his career with an internship at Jo Crepain Architect N.V. and works as a project executive, and later as a projectmanager, for various projects at home and abroad. Together with Allard Schwencke, Rik founded Open Architecten bvba, where he was project and responsible manager of various projects in Belgium, the Netherlands and Portugal. In 2011 Allard Schwencke he founded his own architectural office: Atelier ASA. Rik then changed the name from Open Architecten bvba to Rik de Vooght Architecten bvba. In the mean time he also opened 2DVW Architecten bvba, together with Johan de Wachter (JDWA). 2DVW Architecten is an office for architecture and design specialising in large-scaled projects at home and abroad. The project “Pharmacy De Vooght” is nominated for the Belgium Building Awards, the National Steel Building Prize and is the Winner of the Architecture Night in 2007. In 2010, the urban development plan “balteau site in Liège will be awarded a shared first place of The international design contest Europan 10.
More about Rik







