In opdracht O|M|A Apeldoorn, ontwierp JDWA een bijzonder woongebouw voor het creatieve Havenkwartier in Deventer. Het Havenkwartier biedt plaats aan kunstenaars, ondernemers, eigenzinnige zelfbouwers en dat alles met een ruw industrieel randje. Het KOP gebouw signaleert het begin van het Havenkwartier vanuit de binnenstad en weerspiegelt dus hetgeen daar gebeurt: een levendig, stoer en eigenzinnig nieuw stadsdeel.
In het KOP gebouw komen betaalbare duurzame BENG woningen voor jonge uitstromers en vitale ouderen, het uitgangspunt was dan ook, het minimaliseren van kosten en tegelijk, het maximaliseren van woonkwaliteit en sociale interactie in en rondom het gebouw.
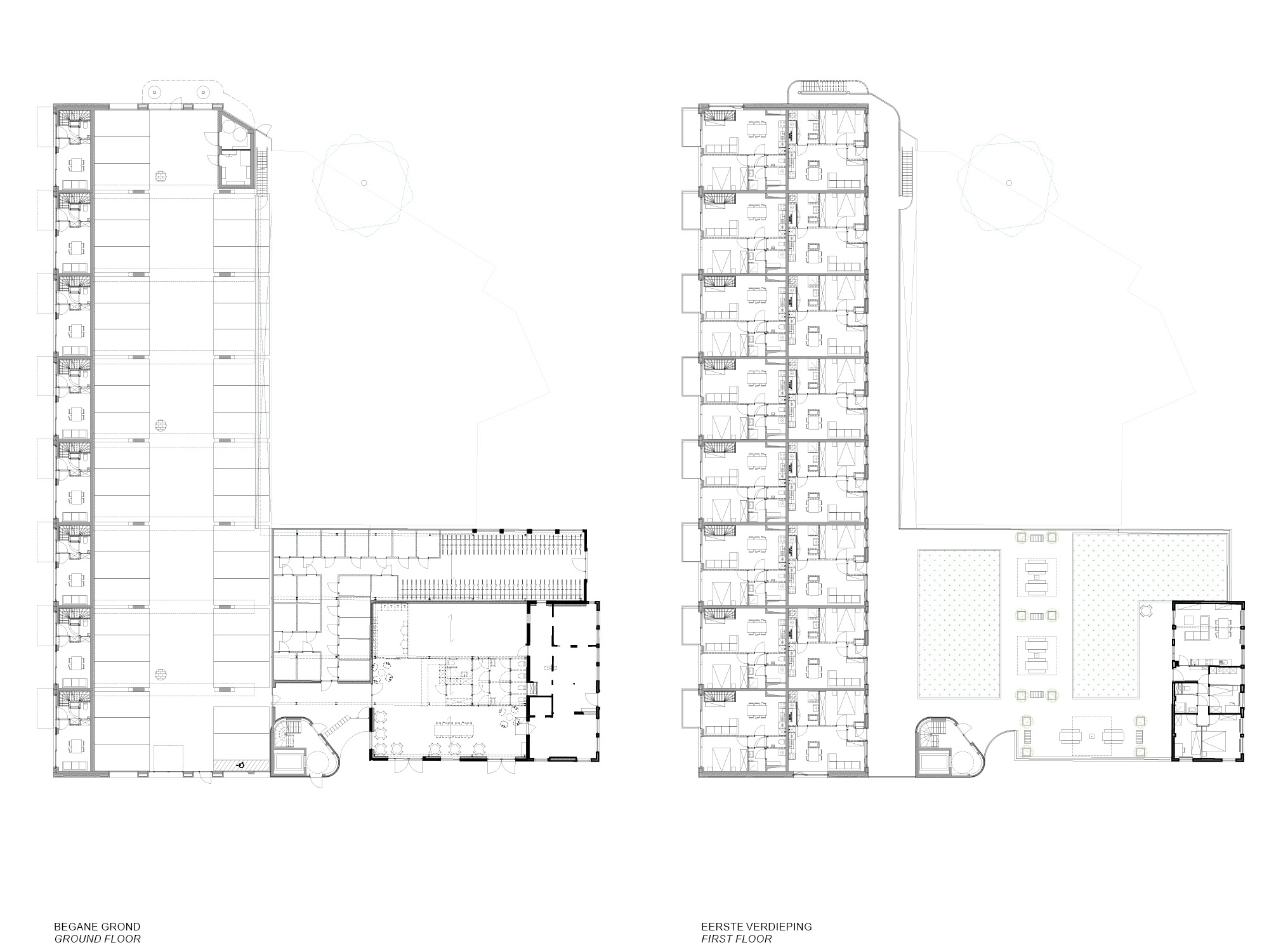
Het KOP gebouw is een samenstelling van drie bouwdelen:
De Koopman, een historische gebouwtje op de site dat maximaal behouden blijft en plek biedt voor collectieve functies zoals een dakterras en een wasserette. De uitwendige circulatie, die het gebouw zijn markante uitstraling geeft en voor de bewoners een plek is om te verblijven en elkaar te ontmoeten. Het intelligente, ‘straight forward’ bakstenen woonvolume dat kosten drukt en toch een veelvoud aan types weet te bieden.
Deze combinatie is KOP Havenkwartier.




















