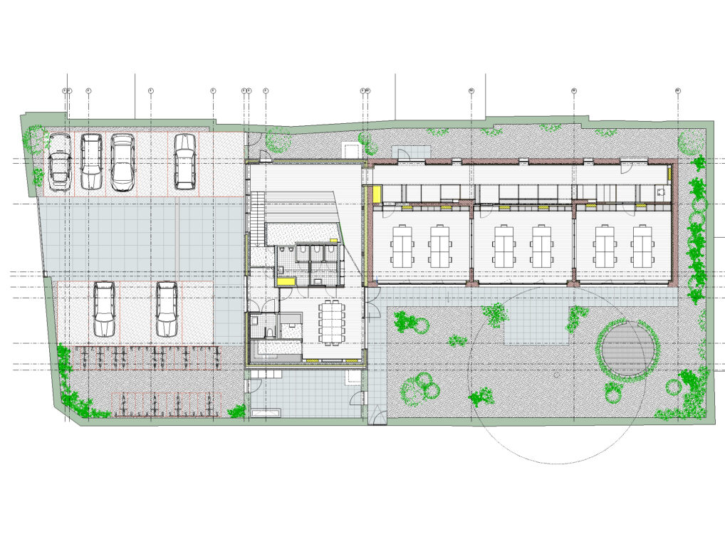
INSILENCIO is een communicatiebedrijf dat werkgevers helpt bij het vinden van de juiste kandidaten. Het doel is om de nieuwe medewerker te binden aan de bedrijfsfilosofie en daarvoor heb je meer nodig dan marketing. ‘Wij maken van uw bedrijf een favoriete werkgever’ Het bedrijf groeit op dit moment en ze hebben weinig ruimte. De oude school waar ze zitten, past in hun werkomgeving. Maar de visuele verbindingen en ontmoetingsplekken voor teamwerk ontbreken. De ambitie voor dit project is het communiceren van wie ze zijn als ‘Insilencio’ en hoe ze werken, dit via via hun eigen werkruimte.
“Klanten zullen pas van een bedrijf houden als de werknemers er eerst van houden.” S. Sinek










